Softver za projektiranje Geberit ProPlanner Sigurno projektiranje s Geberitom
Sa softverom za projektiranje Geberit ProPlanner Geberit Vam stavlja na raspolaganje sofisticirani alat.
Geberit ProPlanner prilagođen je potrebama instalatera i sanitarnih poduzeća za projektiranjem koji se sami brinu za projektiranje i proračun srednjih i većih projekata.
Projektni moduli omogućuju projektiranje sustava za pitku i otpadnu vodu te instalacijski sustav Geberit Duofix.
Moduli za projektiranje
Instalacijski sustavi
Brzo, jednostavno i učinkovito projektiranje instalacijskog sustava:
- Projektiranje instalacijskih sustava
- Rasponi proizvoda Geberit Duofix
- Projektiranje pomoću opcije brzog ulaska
- Brzo, jednostavno i učinkovito projektiranje instalacijskog sustava
- Funkcija izvoza za 3D modul detaljnog projektiranja
- Sučelje za CAD izvoz (Autodesk® RealDWG®)
- Najnoviji propisi i integrirani Geberit proizvodi
- Izračun prema Geberitovim smjernicama i propisima
- Automatski izlaz materijala, dijelova, ponuda i lista rezanja
- Automatski izlaz tlocrta, pogleda s prednje strane i instalacijskih crteža

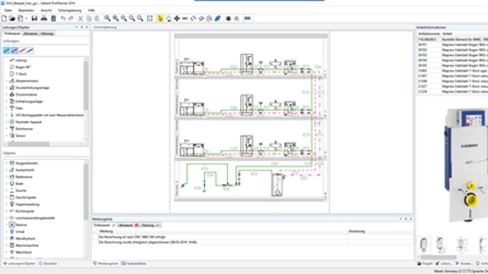
Shematsko projektiranje
Crtački detaljno projektiranje cijevnih sustava:
- Projektiranje sustava pitke i otpadne vode
- Asortimani proizvoda Geberit Mepla, Geberit Volex, Geberit Mapress inox, Geberit PE, Geberit Silent-PP, Geberit Silent-db20 i Geberit Silent-Pro
- Projektiranje u shemi
- Crtački detaljno projektiranje cijevnih sustava
- CAD sučelja za izvoz (Autodesk® RealDWG®)
- Integrirani najnoviji propisi, norme i Geberitovi proizvodi
- Proračun prema normama specifičnima za određenu državu
- Automatsko izdavanje popisa materijala, sastavnice materijala, popisa hidraulike i popisa ponuda
- Automatsko izdavanje shematskih crteža

Detaljno 3D projektiranje
Sveobuhvatno i detaljno projektiranje sanitarnih jedinica:
- Projektiranje instalacija, sustava za pitku vodu i odvodnju
- Asortiman proizvoda Geberit Duofix, Geberit Mepla, Geberit PushFit, Geberit Mapress nehrđajući čelik, Geberit Mapress bakar, Geberit PE, Geberit Silent-PP, Geberit Silent-db20 i Geberit Silent-Pro
- Projektiranje u tlocrtu, pogledu sprijeda i 3D
- Sveobuhvatno i detaljno projektiranje sanitarnih jedinica
- CAD uvoz i izvoz (Autodesk® RealDWG®)
- Izravno projektiranje na temelju CAD planova
- Najnoviji propisi, standardi i integrirani Geberit proizvodi
- Izračun prema Geberitovim smjernicama i propisima
- Automatski izlaz materijala, dijelova, ponuda i lista rezanja
- Automatski prikaz tlocrta, pogleda sprijeda, 3D i instalacijski crteži

Projektiranje otpadnih voda
Projektiranje sustava odvodnje do fitinga i detalja:
- Projektiranje sustava odvodnje
- Proizvodi Geberit PE i Geberit Silent-db20
- Projektiranje u tlocrtu, prednjem pogledu i 3D
- Projektiranje sustava odvodnje do fitinga i detalja u CAD sučelju za uvoz i izvoz (Autodesk® RealDWG®)
- Izravno projektiranje temeljeno na CAD planovima
- Najnoviji propisi i integrirani Geberit proizvodi
- Izračun na temelju švicarskog standarda za otpadne vode
- Automatski izlaz materijala, dijelova, ponuda i lista rezanja
- Automatski prikaz tlocrta, pogleda sprijeda, 3D i instalacijski crteži

Preuzimanje softvera i licenci
Licence za softver
Putem jednokratne registracije nakon instalacije programa Geberit ProPlanner dobivate licencni ključ pomoću kojeg možete besplatno aktivirati modul shematsko projektiranje.
Nakon sudjelovanja u obuci za korištenje softvera Geberit svim sudionicima obuke besplatno stavlja na raspolaganje softver za projektiranje. Za dodatne informacije i licence obratite se tvrtki Geberit ili svom prodajnom savjetniku za proizvode Geberit.
Na temelju licence za tvrtke, program Geberit ProPlanner možete instalirati i aktivirati u Vašem poduzeću koliko god puta želite. Softver je besplatno na raspolaganju korisnicima koji se obrazuju i svim obrazovnim ustanovama.
Preuzimanje softvera
Preuzmite najnoviju verziju programa za projektiranje Geberit ProPlanner.
Sistemski preduvjeti
Prije preuzimanja softvera za projektiranje provjerite jesu li ispunjeni potrebni sistemski preduvjeti:
| Minimalni | Preporučeni | |
|---|---|---|
| Operativni sustav | Windows 8.1, Windows 10 (od 1809) | Windows 10 (od 1809) |
| Procesor | Intel ili AMD višejezgreni procesor | Intel ili AMD višejezgreni procesor |
| Radna memorija | 2 GB | 4 GB |
| Memorija na tvrdom disku | Slobodno 3 GB | Slobodno 6 GB |
| Grafička kartica | 64 MB, DirectX 9 | 256 MB, DirectX 9 |
| Ekran | 1280 piksela vodoravne razlučivosti, 900 piksela okomite razlučivosti | 1920 piksela vodoravne razlučivosti, 1080 piksela okomite razlučivosti |
| preporučeno 96 dpi (veličina prikaza) | ||
| Online servisi | Potreban pristup internetu Važeća e-mail adresa | |
| Komponente sustava | Isporučuju se i automatski instaliraju: - Microsoft .NET 4.7 - Microsoft DirectX 9 |
Obuke za korištenje softvera
Da biste module programa Geberit ProPlanner mogli koristiti još učinkovitije, nudimo Vam posebne seminare kao i individualne obuke za korištenje softvera na licu mjesta u Vašoj regiji.
Za više informacija obratite se na: alen.markovic@geberit.com ili tomislav.lebinec@geberit.com